CONTACT US
-
0448436611 / 0428685902
-
-
3 YiLen Close, Beresfield, NSW 2323, Australia
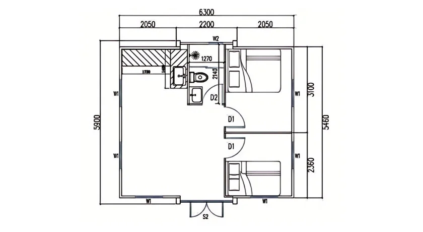
·Floor Area: 37㎡·Loading Quantity: 2 PCS/40HQ









You First, Exceeding Expectations
A perfect fit to your lift style with customisation